
At Landscape Studio, we design thoughtful, functional outdoor spaces that seamlessly blend nature, architecture, and purpose. Led by qualified landscape architect Sean Connolly, we bring 20+ years of experience in crafting landscapes that are beautiful, practical, and ready to build.With a focus on clarity, precision, and innovation, we create well-executed designs that ensure a seamless transition from concept to construction.
From concept to construction, we provide tailored landscape solutions for homeowners, landscapers, and builders.
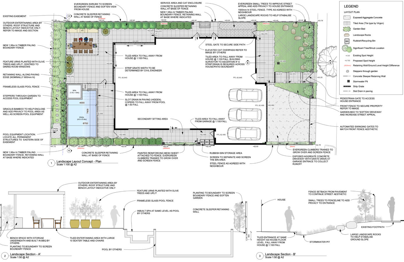
✔ Landscape Design – Concept plans, master plans & garden layouts.
✔ Drafting & Documentation – Construction-ready drawings & council approvals.
✔ Site Surveys & Plans – Accurate measurements & detailed layouts.
✔ Planting Plans – Thoughtful selections for thriving landscapes.
✔ Collaboration with Landscapers & Builders – Design support & professional documentation.

Step 1. Site Visit & ConsultationWe assess your space, discuss your vision, and gather site details.
Step 2. Design & DocumentationWe develop concept plans, technical drawings, and construction-ready documents.
Step 3. Final Plan DeliveryYou receive clear, professional plans ready for approval and implementation.

With 20+ years of experience, we create landscapes that are not only beautiful but also functional, buildable, and designed to last.
✔ Led by a Qualified Landscape Architect – Professionally designed spaces, not just sketches.
✔ Tailored, Site-Specific Designs – Every project is unique and crafted for its location.
✔ Council-Ready Documentation – Ensuring compliance for hassle-free approvals.
✔ Clear, Buildable Plans – Designed with construction and execution in mind.
✔ Trusted by Landscapers & Builders – Supporting professionals with expert drafting & design.

Let’s Create Something Exceptional.
Get in touch to discuss your project, request a consultation, or learn more about how we can bring your landscape vision to life.
Subscribed
Thank you
Consectetur adipiscing elit duis tristique sollicitudin nibh sit amet commodo. Eu turpis egestas pretium aenean pharetra.









